Cách Thiết Kế Nhà Nhỏ đẹp 30m2 Đến Nhà Giàu Cũng Phải Ao Ước

Cách thiết kế nhà nhỏ đẹp 30m2 với các đồ nội thất thông minh phối hợp với cách bày trí sáng tạo, màu sắc có thể tạo ra một không gian tuyệt vời. Thiết kế căn chung cư 30m2 sau đây là ví dụ nổi bật cho việc mặc dù khiêm tốn về diện tích nhưng căn nhà vẫn đầy đủ tiện nghi.
Mặc dù chỉ sở hữu diện tích khá khiêm tốn là 30m2 nhưng do có sự sáng tạo trong thiết kế của kiến trúc sư nên ngôi nhà đã trở thành một nơi lý tưởng với đôi vợ chồng mới cưới hoặc người độc thân.

Những lưu ý quan trọng khi bố trí nhà nhỏ 30m2

Do sự hạn chế về mặt diện tích, cách thiết kế, bố trí đồ đạc trong những ngôi nhà nhỏ 30m2 yêu cầu sự khéo léo cao cùng với sự sáng tạo, phá cách về ý tưởng thiết kế. Từ đó đưa ra những phương án tối ưu không gian của căn nhà hoàn hảo nhất. 4 lưu ý dưới đây sẽ giúp bạn dễ dàng bố trí đồ nội thất hơn.

Chú ý đến màu sắc

Cảm xúc của gia chủ quyết định rất nhiều vào yếu tố màu sắc của không gian nhà. Vì thế để căn nhà đẹp và thoáng hơn, bạn nên lựa chọn những gam màu sáng, sắc độ nhẹ nhàng, trung tính như trắng, be, kem…Bởi chúng sẽ đánh lừa được thị giác người nhìn mang lại cảm giác căn nhà rộng hơn so với thực tế.

nhà nhỏ đẹp 30m2

Không nên sử dụng nhiều những tông màu tối trong việc bố trí nhà nhỏ 30m2. Nếu bạn là chủ nhà theo phong cách cá tính, mong muốn thể hiện gu thẩm mỹ riêng, hãy quan tâm đến những tone màu nhấn giúp cân bằng sắc độ cho không gian. Ngôi nhà tối tăm sẽ gây nên cảm giác bí bách, ngột ngạt.

Tối ưu ánh sáng tự nhiên

Thiết kế nhà nhỏ 30m2 nói riêng và những ngôi nhà rộng lớn nói chung cũng cần phải tối ưu ánh sáng tự nhiên. Vì một căn nhà ngập tràn trong ánh sáng giúp mang lại nguồn năng lượng tươi trẻ, tích cực cho chủ nhà, cùng với đó, chúng còn tạo sự thoải mái, cởi mở và vô cùng thoáng đãng cho không gian.

nhà nhỏ đẹp 30m2

Ưu tiên nội thất thông minh

Không nên bố trí quá nhiều đồ nội thất riêng lẻ, việc kết hợp nhiều công năng vào nội thất đa năng, nội thất thông minh sẽ giúp bạn tối ưu diện tích của ngôi nhà rất hiệu quả, bên cạnh đó nó còn đem lại nét đẹp thẩm mỹ hiện đại mà vẫn đảm bảo về công năng sử dụng.

nhà nhỏ đẹp 30m2

Tận dụng ý tưởng không gian mở

Việc này gần như là ý tưởng tuyệt và luôn là giải pháp mà những chuyên gia hầu hết đều dùng để bố trí nội thất cho nhà nhỏ 30m2. Bởi vì nó sẽ giúp mở rộng không gian hơn, không khí thoáng đãng và tạo được sự thoải mái hơn cho chủ nhà.

Để có thể ứng dụng các lưu ý này trong khi thiết kế, bạn hãy tiếp tục theo dõi những cách bố trí, thiết kế nội thất cho nhà có diện tích nhỏ này sẽ dễ hình dung hơn.

Các cách bố trí nội thất nhà nhỏ 30m2

Bố trí nhà nhỏ 30m2 có phòng phòng ngủ liên thông phòng khách

Khi bước chân vào căn nhà, không gian phòng khách và phòng ngủ hiện ra với thiết kế mang vẻ đẹp sang trọng, tinh tế và rất ấn tượng.

nhà nhỏ đẹp 30m2

Sử dụng vách ngăn khung gỗ cho bố trí phòng ngủ liền phòng khách

nhà nhỏ đẹp 30m2

Nhà nhỏ thiết kế không gian mở với vách kính gấp hiện đại

Cách thức hoàn hảo cho việc thiết kế phòng ngủ thông với phòng khách mà vẫn đảm bảo được tính riêng tư và toát lên được vẻ đẹp tinh tế thông qua vách ngăn kính kết hợp với chiếc rèm mềm mại khi bố trí căn nhà nhỏ.

nhà nhỏ đẹp 30m2

Vách kính hiện đại cũng là ý tưởng tuyệt vời giúp tạo không gian riêng cho phòng ngủ liền phòng khách

nhà nhỏ đẹp 30m2

Dùng rèm kéo sang trọng để phân chia phòng khách và phòng ngủ một cách tinh tế

Việc kết hợp giữa gam màu trắng trung tính và tone màu vàng gỗ mang nét nhẹ nhàng, giúp cho không gian nội thất nhà nhỏ 30m2 thoáng đãng, thoải mái và rộng rãi hơn hẳn. Đây chính là giải pháp tối ưu mà những chuyên gia về thiết kế luôn dành sự ưu tiên trong khi thiết kế nội thất cho những căn nhà nhỏ.

Phòng ăn và phòng bếp nối liền nhau một cách khéo léo

Cạnh phòng khách của ngôi nhà 30m2 này, kiến trúc sư đã bố trí phòng ăn ngay bên cạnh giúp tiết kiệm diện tích. Khu vực ăn được đặt một bàn ăn và 2 chiếc ghế.

nhà nhỏ đẹp 30m2

Phòng khách – phòng bếp và phòng ăn được bố trí chung một không gian cực kỳ khéo léo và khoa học cho nhà nhỏ 30m2

Điều khiến các vị khách đến nhà cảm thấy thích thú khi bước chân vào căn nhà 30m2 này chính là không gian thoáng đã vô cùng của nó. Sự tỉ mỉ chăm chút của gia chủ được thể hiện qua từng vật dụng nhỏ trong căn nhà.

nhà nhỏ đẹp 30m2

Bố trí nhà diện tích nhỏ 30m2 theo phong cách Á Đông độc đáo

Mặc dù phòng khách bếp có diện tích nhỏ nhưng các chuyên gia vẫn tự tin dùng gam màu nâu gỗ sậm màu truyền thống cho ngôi nhà nhỏ này. Đồng thời, màu xanh lá đậm được khéo léo kết hợp giúp giảm nhiệt độ cho không gian trong bản thiết kế nhà diện tích 30m2 này.

nhà nhỏ đẹp 30m2

Bố trí nhà 30m2 thông minh trong cách sắp xếp, lựa chọn màu sắc, chất liệu nội thất

nhà nhỏ đẹp 30m2

Khu vực ăn với phòng khách thoáng mát, hiện đại

Cửa sổ thiết kế khá rộng giúp tận dụng ánh sáng mặt trời giúp căn phòng thông thoáng hơn. Nhờ sự bố trí, sắp xếp hợp lý mà phòng khách có thể để được kệ TV, thiết kế của kệ thông minh và đẹp mắt giúp tối giản không gian nhà.

nhà nhỏ đẹp 30m2

Tủ bếp có đầy đủ chức năng cần thiết

Do khu bếp có diện tích khá nhỏ, ý tưởng sử dụng tủ bếp hình chữ L là giải pháp vô cùng hữu hiệu để tận dụng được từng centimet diện tích cho khu bếp. Thiết kế tủ bếp này giúp người nấu nướng có chỗ đứng thoải mái, rộng rãi hơn để nấu ăn. kiểu thiết kế nhiều ô tủ chứa được nhiều đồ, giúp phòng bếp nhỏ gọn gàng hơn.

nhà nhỏ đẹp 30m2

Thiết kế nhà bếp thông với phòng khách khéo léo chính là giải pháp nới rộng diện tích hoàn hảo cho căn nhà diện tích nhỏ 30m2

Thiết kế phòng ngủ cho nhà nhỏ ấm cúng

Phòng ngủ là nơi riêng tư để thư giãn, nơi tái tạo năng lượng cho ngày mới đầy sức sống nên thiết kế nội thất của phòng này luôn được các chủ nhà đầu tư nhiều tâm huyết. Cho dù diện tích nhà nhỏ 30m2 hay 10m2 thì không gian phòng ngủ cũng cần được chú trọng vì nó sẽ ảnh hưởng rất nhiều đến cảm xúc và hiệu quả làm việc của bạn.

nhà nhỏ đẹp 30m2

Bố trí phòng ngủ nhỏ gọn gàng với những chiếc tủ có kích thước vừa đúng với kiến trúc của phòng, giúp không gian phòng gọn gàng và tinh tế hơn.

nhà nhỏ đẹp 30m2

Tận dụng khoảng trống ở gầm giường để thiết kế thêm hộc kéo chứa đồ

nhà nhỏ đẹp 30m2

Tạo không gian phòng ngủ yên tĩnh bằng chiếc gác lửng

Cùng với việc lựa chọn kích thước và kiểu dáng nội thất phù hợp thì việc hài hòa trong phối màu tổng thể không gian cùng tối ưu được ánh sáng tự nhiên cho phòng ngủ cũng là một việc cần bạn chú ý. Vì tất cả điều này sẽ giúp bạn cảm thấy không gian nhà ở thoáng đãng hơn, cảm thấy hào hứng hơn khi trở về với chốn riêng tư của mình.

Mẫu thiết kế nhà nhỏ đẹp 30m2 được yêu thích nhất

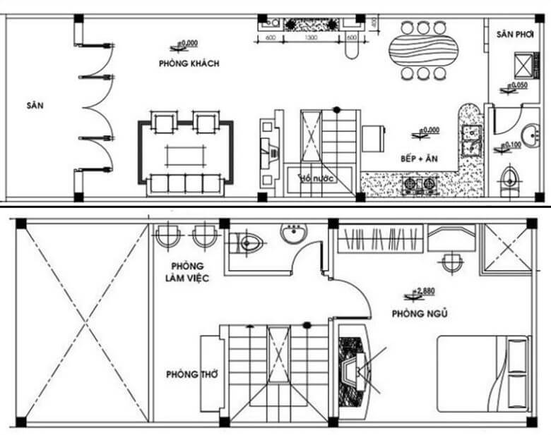
Thiết kế nhà nhỏ 30m2 1 tầng

Đối với kiểu nhà diện tích nhỏ như này, những không gian chức năng cần đáp ứng được công năng sử dụng vừa đảm bảo được tính thẩm mỹ cho ngôi nhà. Bạn sẽ dễ dàng hình dung hơn trong cách bố trí, thiết kế đồ nội thất cho nhà nhỏ với bản vẽ mặt bằng dưới đây:

nhà nhỏ đẹp 30m2

Bản vẽ mặt bằng trang trí nội thất nhà nhỏ 30m2 1 tầng

Loại nhà 30m2 1 tầng này thường được thiết kế thêm phần gác lửng để đáp ứng được nhu cầu sử dụng của gia đình. Khu gác lửng sẽ được làm phòng đọc sách, phòng ngủ hoặc phòng làm việc. Tầng trệt sẽ được tận dụng làm phòng khách, bếp hoặc dùng làm khu giả trí.

nhà nhỏ đẹp 30m2

Thiết kế phòng khách nhà nhà nhỏ 30m2 theo phong cách hiện đại

nhà nhỏ đẹp 30m2

Tận dụng vách gỗ gầm cầu thang làm kệ tivi đơn giản mà đẹp

nhà nhỏ đẹp 30m2

Góc làm việc thoáng đãng với ánh sáng mặt trời

nhà nhỏ đẹp 30m2

Không gian phòng khách liền với nhà bếp thoáng đãng

nhà nhỏ đẹp 30m2

Kiểu phòng ngủ nhỏ mang phong cách Hàn Quốc

Mẫu thiết kế nội thất nhà nhỏ 30m2 2 tầng

Nhà 30m2 2 tầng thoải mái hơn so với 1 tầng, cách bố trí nhà 2 tầng sẽ giúp bạn tạo sự riêng tư cho những khu vực sinh hoạt của gia đình bằng cách bố trí các căn phòng ngủ ở tầng trên, nơi đọc sách hoặc bố trí phòng thờ nghiêm trang.

nhà nhỏ đẹp 30m2

Bản vẽ bố trí mặt bằng nội thất nhà nhỏ 30m2 2 tầng

Kiểu thiết kế nội thất cho nhà diện tích nhỏ 2 tầng sẽ giúp bạn có những ý tưởng bố trí nội thất hợp lý, khoa học đồng thời tận dụng được tối đa diện tích ngôi nhà.

nhà nhỏ đẹp 30m2

Phòng khách liền bếp được thiết kế ở tầng trệt

nhà nhỏ đẹp 30m2

Khu vực bếp nấu cùng với phòng ăn được thiết kế hiện đại, đơn giản

nhà nhỏ đẹp 30m2

Do diện tích nhà nhỏ 30m2 có hạn chế, phòng ngủ master được bố trí đơn giản và nhỏ gọn

nhà nhỏ đẹp 30m2

Tối ưu ánh sáng mặt trời cho phòng ngủ master nhỏ với rèm roman

nhà nhỏ đẹp 30m2

Gam màu xanh năng động được dùng cho phòng ngủ của cậu con trai nhỏ

nhà nhỏ đẹp 30m2

Kiểu tủ quần áo đụng trần tối ưu diện tích cho phòng ngủ nhỏ

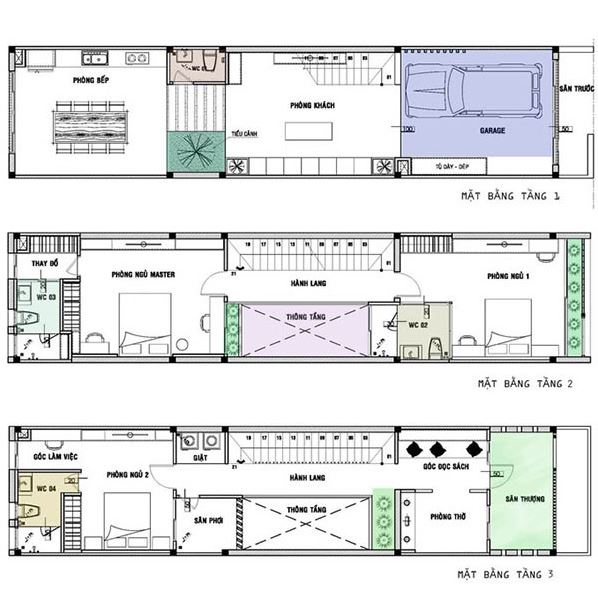
Mẫu thiết kế nội thất nhà nhỏ 30m2 3 tầng

Mẫu nhà này phù hợp cho những gia đình có nhiều thế hệ hoặc có từ 4-6 thành viên cùng chung sống. Nhà ống 30m2 3 tầng thường sẽ có 3 đến 4 phòng ngủ đáp ứng nhu cầu sinh hoạt cho gia đình. Giống với các quy tắc bố trí nội thất nhà nhỏ có diện tích tương tự khác, những phòng ngủ của mẫu nhà này cũng được ưu tiên bố trí ở các tầng trên còn không gian sinh hoạt chung được đặt ở tầng trệt.

nhà nhỏ đẹp 30m2

Bản vẽ mặt bằng nội thất nhà ống nhỏ 3x10m2

nhà nhỏ đẹp 30m2

Bài trí phòng khách bếp ở tầng trệt nhà ống

nhà nhỏ đẹp 30m2

Phòng khách và bếp được ngăn cách bằng một chiếc bàn ăn

nhà nhỏ đẹp 30m2

Thiết kế nội thất phòng ngủ theo phong cách hiện đại

nhà nhỏ đẹp 30m2

Không gian phòng ngủ kết hợp với phòng làm việc

nhà nhỏ đẹp 30m2

Tủ quần áo cao kịch trần với kệ sách được bố trí khoa học

Mẫu thiết kế căn hộ nhỏ 30m2 (3x10m) tiện nghi

Với cách thiết kế và bố trí nội thất thông minh, căn hộ có diện tích nhỏ này khiến ai cũng yêu thích vì nhìn vô cùng diện đại, rộng rãi và đầy đủ tiện nghi.

nhà nhỏ đẹp 30m2

Bài trí căn hộ nhỏ 30m2 nhưng đầy đủ tiện nghi và đẹp mắt

Căn hộ chỉ nhỏ 30m2 nhưng vẫn trông rất thoáng với 2 gam màu chủ đạo là xám và trắng. Những chi tiết nội thất và đồ trang trí nổi bật trên nền nhà sơn trắng.

nhà nhỏ đẹp 30m2

Tối ưu ánh sáng tự nhiên cho căn hộ nhỏ luôn tươi mới

nhà nhỏ đẹp 30m2

Thiết kế kệ tủ phòng khách

Để hạn chế những thứ rườm rà, đồ đạc được để gọn gàng, khoa học và đảm bảo tính thẩm mỹ với kệ tủ trang trí lớn được bài trí sát tường của phòng khách cực kỳ tinh tế.

nhà nhỏ đẹp 30m2

Nhà bếp nhỏ nhưng vẫn đầy đủ tiện nghi

nhà nhỏ đẹp 30m2

Kiểu tủ bếp chữ L MDF Acrylic bóng gương sang trọng

Điểm mạnh lớn của chất liệu Acrylic bóng gương chính là đem lại cảm giác đồ đạc luôn như mới và khả năng chống trầy xước cao cho tủ bếp.

nhà nhỏ đẹp 30m2

Thiết kế giường ngủ dạng bục có hộc kéo cho phòng ngủ nhỏ nhà 30m2

Phòng ngủ là chỗ để nghỉ ngơi thư giãn sau ngày dài làm việc mệt mỏi. Vì thế cách bố trí đồ đạc cần khoa học và tối ưu nhiều khoảng trống cho căn phòng được thông thoáng và mang lại cảm giác rộng hơn.

nhà nhỏ đẹp 30m2

Dùng khoảng tường trống phía sau đầu giường ngủ để làm kệ hở trang trí tinh tế

nhà nhỏ đẹp 30m2

Tổng quát thiết kế phòng ngủ master cho căn hộ nhỏ 30m2 vô cùng hiện đại

Các chuyên gia thường chọn loại giường ngủ kiểu bục liền tủ kết hợp với hộc tủ kéo ở ngay bụng giường để có thêm diện tích chứa đồ để tiết kiệm tối đa diện tích cho căn phòng ngủ khi thiết kế nhà diện tích 30m2. Điều này giúp căn phòng trở nên gọn gàng hơn và thể hiện nét đẹp hiện đại, tinh tế.

Căn hộ chỉ nhỏ 30m2 nhưng vẫn cực kỳ tiện nghi và hiện đại nếu biết cách thiết kế và bài trí nội thất hợp lý. Trên đây, Chuyên trang bất động sản đã đưa ra cho bạn những cách thiết kế và bài trí nhà nhỏ 30m2 hợp lý và thông minh, làm cho căn hộ của bạn trông rộng rãi hơn. Hy vọng bài viết này hữu ích với bạn. Chúc bạn chọn được mẫu thiết kế phù hợp và đẹp nhất cho ngôi nhà của mình.

0378.59.00.99