Phối cảnh cho mẫu nhà 2 5 tầng hiện đại diện Tích 4x18m

Mẫu nhà 2 5 tầng hiện đại có thiết kế hiện đại, những hình khối kiến trúc được bố trí cân đối cân bằng, đáp ứng đầy đủ các hiệu năng sinh hoạt thường xuyên. Đây là mẫu nhà ống đẹp được các bạn trẻ, gia đình có ít thành viên lựa chọn xây dựng.

mẫu nhà 2 5 tầng hiện đại

Mẫu nhà 2 5 tầng hiện đại có thiết kế đương đại.

Yêu cầu thiết kế và phân bố mặt bằng mẫu nhà 2, 5 tầng hiện đại 4x18m

Để gia đình dễ dàng tham khảo và so sánh, chúng tôi xin gửi đến bản vẽ phân bố mặt bằng của mẫu nhà 2 5 tầng hiện đại và mong muốn của gia chủ như sau:

  • Khu vực 4x18m
  • Số tầng: 2,5 tầng
  • Khu vực hiệu năng bao gồm: Nhà để xe, phòng khách, bếp và phòng ăn, sân vườn, 2 phòng ngủ, phòng thờ, sân thượng, phòng giặt phơi, phòng thủ sinh.

Sau khi đã tìm hiểu qua nhu cầu của chủ nhà, KTS đã tư vấn phương án thiết kế mặt bằng cụ thể với 2,5 tầng gồm:

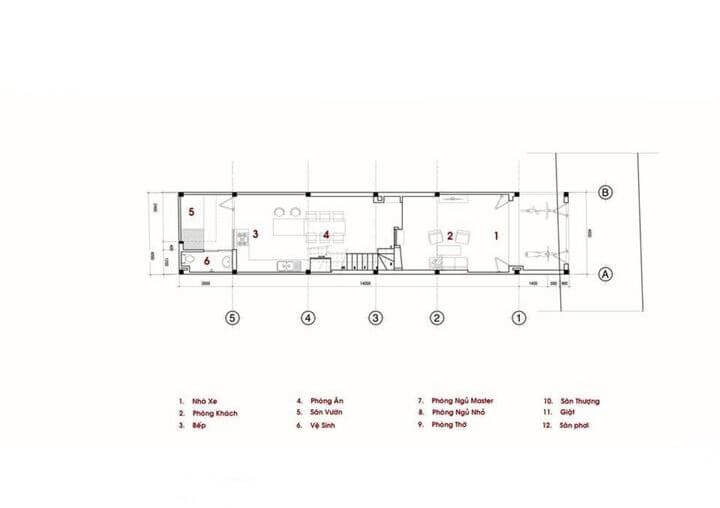
Tầng 1 được thiết kế liên thông nhau nhằm tạo sự thông thoáng, từ phía ngoài vào là khoảng sân trước và khu để xe gia đình lớn. Phía trong là phòng khách liền kề với bếp và phòng ăn. Sân sau và phòng vệ sinh được phân bổ trong cùng.

 

Bạn có thể xem thêm bài viết: Thiết kế nhà 40m2 2 tầng có gác lửng chống ngập nước dễ dàng

mẫu nhà 2 5 tầng hiện đại

Mặt bằng tầng 1 nhà ống 2,5 tầng.

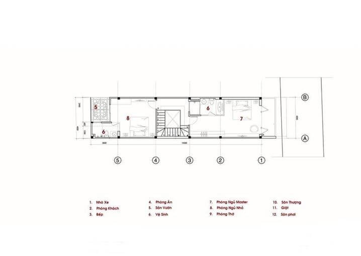
Ở mặt bằng tầng 2, KTS đã phân bố khoảng thông tầng cạnh cầu thang, phía sau gồm 2 phòng ngủ với làm sạch khép kín.

mẫu nhà 2 5 tầng hiện đạimẫu nhà 2 5 tầng hiện đại

Mặt bằng tầng 2 mẫu nhà 2 5 tầng hiện đại

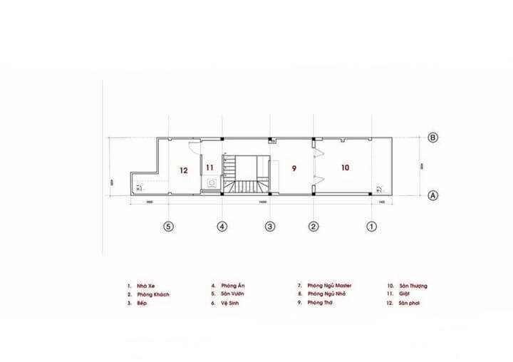
Cũng giống như các mẫu nhà phố khác, cầu thang của ngôi nhà được sắp xếp sát vách tường nhằm tăng không gian sinh hoạt cho khoảng không. Ngoài ra thiết kế ở tầng thượng cũng được tính toán kỹ để phù hợp với mỹ quan thành phố khi để không gian giặt phơi ở phía sau.

mẫu nhà 2 5 tầng hiện đại

Mặt bằng tầng 3 của mẫu nhà 2 5 tầng hiện đại

Ngoài việc đáp ứng đầy đủ chức năng sử dụng của ngôi nhà và gia trị thẩm mỹ, KTS cũng không quên nguyên tố phong thủy cho gia chủ. bạn đơn giản nhận ra điều này qua cách xử lý khéo léo ở cầu thang.

Phối cảnh nội thất nhà ống 2,5 tầng đẹp đương đại

Với mục đích chỉ cần 2 phòng ngủ cho vợ chồng và một con trai nên khi thiết kế, những diện tích sinh hoạt khá thoải mái, thoáng đạt. Mặt tiền ngôi nhà có thiết kế gọn ghẽ, đương đại với cửa kính to cùng ban công rộng có khả năng trồng thêm cây xanh. Mảng tường làm đẹp bắt mắt và hệ lam cửa có Công dụng che nắng cho khoảng không bên trong.

Sân thượng được chủ nhà dành làm nơi giải trí cho bạn. Hệ thống mái che giúp bạn có thể phân bổ bàn trà hoặc chiếc ghế dài thư giãn, tạo một khoảng trống nghỉ ngơi lý tưởng ở đô thị.

mẫu nhà 2 5 tầng hiện đại

Mặt tiền ngôi nhà có thiết kế gọn ghẽ đương đại.

Khoảng trống sinh hoạt chung của gia đình ở tầng một được bài trí theo lối kiến trúc mở. Ngoài hai tone màu trắng và gỗ thiên nhiên làm chủ đạo, gam màu đen ở bậc cửa và gối trang trí giúp giao hòa tổng thể. KTS đã ngăn chia phòng khách và bếp bằng một vách gỗ đương đại. Ánh sáng từ hệ thống điện trên trần nhà khiến căn phòng thêm ấm cúng và quý phái hơn.

mẫu nhà 2 5 tầng hiện đại

Không gian tầng trệt được thiết kế theo lối kiến trúc mở.

Một bộ tranh treo tường và kệ gỗ làm đẹp được thêm vào nhằm tạo điểm nhấn tăng tính trẻ trung sống động cho căn phòng.

mẫu nhà 2 5 tầng hiện đại

Bộ tranh treo tường và kệ gỗ trang trí được thêm vào nhằm tạo điểm khác biệt.

Kế cấu mở trong ngôi nhà này được KTS áp dụng khá độc đáo. Ngoài việc tạo chênh lệch độ cao sàn nhà so với phòng khách, KTS còn chia các công dụng khác nhau của không gian để tạo sự tiện dụng trong sinh hoạt với vùng bàn ăn đối diện với bếp.

mẫu nhà 2 5 tầng hiện đại

Sự chênh lệch độ cao của sàn giúp phân chia khoảng trống.

mẫu nhà 2 5 tầng hiện đại

Cửa kính giúp tận dụng ánh sáng tự nhiên từ bên ngoài.

Phía sau là phòng vệ sinh và một khu vực sân nhỏ, cửa kính giúp tận dụng ánh sáng tự nhiên từ bên ngoài, đồng thời điều này tạo sự lưu thông không khí, tránh cho mùi thức ăn ám vào bên trong nhà. Kết quả của việc này khiến cho khu vực bàn ăn sáng hơn.

mẫu nhà 2 5 tầng hiện đại

Sân nhỏ phía sau tạo sự thông thoáng và tận dụng ánh sáng cho ngôi nhà.

Trần nhà cao mang đến cảm nhận vô cùng thoáng đãng trong ngồi nhà ống vùng 4x18m này. những chi tiết trang trí nhẹ nhõm cùng nội thất phân bổ đơn giản tạo nên sự chan hòa mà gia chủ mục đích. Cửa sổ rộng có thêm rèm roman giúp chủ nhân căn phòng đơn giản điều chỉnh ánh sáng tùy theo tiêu chí.

mẫu nhà 2 5 tầng hiện đại

Trần nhà cao đem đến cảm giác hết sức thoáng đạt.

mẫu nhà 2 5 tầng hiện đại

Rèm roman giúp chủ nhân căn phòng đơn giản điều chỉnh ánh sáng tùy theo mong muốn.

mẫu nhà 2 5 tầng hiện đại

Các điểm nổi bật nhẹ nhàng khiến vùng nghỉ ngơi yên tĩnh hơn.

Đồ nội thất được KTS chọn lựa với màu sắc tương đồng tường và trần nhà, khiến căn phòng sáng và đương đại hơn. Vì khu vực căn nhà ống 2,5 tầng này chỉ phân bố 2 phòng ngủ chính, bởi vậy diện tích khá rộng rãi. những vật dụng như tủ kệ, đồ nội thất và phòng ngự sinh được trang bị khá đầy đủ và tiện lợi.

mẫu nhà 2 5 tầng hiện đại

Đồ nội thất có màu sắc tương đồng với tường và trần nhà tạo sự lớn.

Phòng tắm của ngôi nhà ống 4x18m đem đến cảm giác thanh lịch và không hề có chi tiết thừa nào. Sự tương phản giữa màu trắng và màu nâu của gỗ khiến phòng tắm trở nên thật ấn tượng.

Sau khi tham khảo qua hình ảnh ngôi nhà 4 tầng tại quận 7. Nhìn tổng thể khoảng không biểu hiện được ý thức hiện đại, gần gũi thiên nhiên chắc hẳn bạn đã có thêm ý tưởng cho ngôi nhà của mình.

Trên đây Top10Vn đã gợi ý cho bạn cách phối cảnh cho mẫu nhà 2 5 tầng hiện đại đẹp. Hy vọng những thông tin này hữu ích đối với bạn và cảm ơn vì đã bỏ thời gian quý báu để đọc bài viết này.

0378.59.00.99