Tổng hợp những mẫu nhà 2 tầng 1 tum mái Thái đẹp sang chảnh

Mẫu nhà 2 tầng 1 tum mái Thái đẹp đang là phong trào xây dựng nhà hiện tại. Bởi 1 tum tăng thêm không gian sử dụng nhưng giá thành phát sinh không đáng kể so với việc lên tầng 3. Vì vậy ngày nay nhiều bạn hiện giờ chọn lựa thêm tầng tum thay vì lên 1 tầng nữa. Dưới đây Top10Vn sẽ đưa ra các thông tin bổ ích và các mẫu nhà gia đình không nên bỏ lỡ.

1. Những đế ý khi xây mẫu nhà 2 tầng 1 tum mái Thái đẹp

1.1. Về mặt kết cấu

Đối với một mẫu nhà 2 tầng 1 tum mái Thái đẹp hay bất cứ công trình nào khác. Việc giảm các chi tiết rườm rà chính là bí quyết giúp tiết kiệm ngân sách hiệu quả. Cần tìm ra phương án phối hợp hài hòa giữa những hình khối và kết cấu nhà phù thống nhất. 

Một kết cấu khoa học vừa đem lại diện tích sống lý tưởng lại vừa đem đến vẻ đẹp quyền quý cho ngôi nhà.

1.2. Về màu sắc

Cùng với khối kiến trúc chủ đạo bên cạnh, màu sắc chính là nhân tố đem lại ấn tượng cho ngôi nhà. tiêu chí đối với việc chọn lựa màu sắc chính là đảm bảo sự cân bằng với khu vực kiến trúc xung vòng quanh. phù hợp với kiến trúc, nội thất ngôi nhà và phù hợp với mệnh gia chủ.

mẫu nhà 2 tầng 1 tum mái Thái đẹp

Mẫu nhà 2 tầng 1 tum mái Thái đương đại

1.3. Về thiết kế phần mái

Tuy là nhà mái Thái nhưng không phải nhà nào cũng có mái giống nhau. Tùy kiến trúc chi tiết của ngôi nhà mà mái nhà có thể có các biến tấu sao cho thích hợp.

Dù là mái Thái truyền thống, dễ dàng hay mái Thái giật cấp đều có các thế mạnh riêng. Với sự tinh tế trong lựa chọn thiết kế, ngôi nhà sẽ đem lại sự hài lòng với vẻ đẹp cuốn hút.

1.4. Về mặt phong thủy

Theo quan niệm dân gian của người Việt ta thì thiết kế nhà 2 tầng 1 tum mái Thái khá tốt về phong thủy. Những độ dốc tương đối và dạng hình chóp của mái Thái tránh được các hung khí không tốt cho ngôi nhà.

1.5. Ngân sách thiết kế nhà 2 tầng 1 tum mái Thái thích hợp với rất nhiều gia đình

Thực tiễn cho thấy mẫu thiết kế nhà này thường sở hữu giá thành cao hơn những mẫu bình thường khác. Các mẫu thiết kế này vẫn luôn được rất nhiều người yêu thích và chọn lựa cho gia đình mình. Bất cứ gia đình diện tích nông thôn hay thành thị. Với các gia đình sở hữu kinh tế cao hay gia đình có mức kinh tế thông thường.

2. Tham khảo những mẫu nhà 2 tầng 1 tum mái Thái đẹp – trang trọng

2.1 Mẫu nhà 2 tầng 1 tum mái Thái 8x13m đẹp hút hồn

Mẫu nhà 2 tầng 1 tum mái Thái đẹp được tọa lạc tại vị trí có cảnh quan thiên nhiên vô cùng rộng mở. Có rất nhiều góc view đẹp hướng ra bên ngoài ngã ba của đường liên phố. Điểm khác biệt hết sức ấn tượng đó là hình ảnh chú sư tử trắng tại mặt cổng trước. Nó như một lời khẳng định vị thế và uy quyền.

mẫu nhà 2 tầng 1 tum mái Thái đẹp

Nhà 2 tầng 1 tum mái Thái ấn tượng

Từ trên cao nhìn xuống, bố cục tổng thể của nhà 2 tầng 1 tum mái Thái này có kết cấu khá điệu đà. Cùng kiểu bánh u với hệ mái đua rộng bao quanh co.

mẫu nhà 2 tầng 1 tum mái Thái đẹp

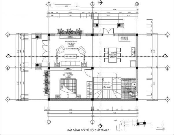
Bản thiết kế tầng 1

  • Mặt bằng tầng 1: toàn bộ các phòng tầng 1 đều có view nhìn ra ngoài hướng sảnh chính của ngôi nhà. Bởi khu vực này khá dồi dào sức sống và rất giàu nguồn năng lượng tự nhiên. Tầng 1 liệt kê 1 phòng khách, 1 phòng bếp, 1 phòng ngủ và tiểu cảnh xung vòng quanh.

mẫu nhà 2 tầng 1 tum mái Thái đẹp

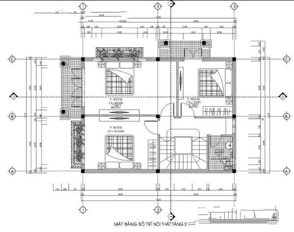
Bản thiết kế tầng 2

  • Mặt bằng tầng 2: được thiết kế 2 tầng 1 tum luôn cuốn hút các thành viên của gia đình với 3 phòng ngủ và ban công rộng to, thông thoáng. Nơi đây cũng là “ cửa ngõ” để con người có khả năng tìm đến vẻ đẹp trọn vẹn.
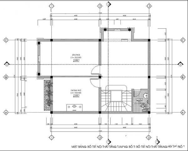
  • Mặt bằng tầng tum

mẫu nhà 2 tầng 1 tum mái Thái đẹp

Bản thiết kế tầng tum

2.2. Kiểu nhà 2 tầng 1 tum mái Thái với mức giá thấp

Mẫu nhà 2 tầng 1 tum mái Thái đẹp được thiết kế theo trường phái tân cổ điển mái Thái. Bởi vì là mẫu nhà ống nên chỉ phần mặt tiền chính của ngôi nhà được làm đẹp. Và là phần phô diễn vẻ đẹp của ngôi nhà. Khuôn viên của ngôi nhà được xây dựng tường rào bao quanh co, phía trước có cổng vững chãi an toàn.

mẫu nhà 2 tầng 1 tum mái Thái đẹp

Mẫu nhà 2 tầng 1 tum mái Thái đẹp với giá thành thấp

Cửa phụ tầng 2 và cửa sổ đều được làm bằng kính sườn gỗ. Giúp ngôi nhà có khả năng lấy ánh sáng thiên nhiên từ bên ngoài vào nhà một cách đơn giản. Lan can và cổng đều được làm bằng sắt. Với những chi tiết hoa văn trang hoàng cầu kỳ tạo nét đẹp duyên dáng cho ngôi nhà.

  • Mặt bằng tầng 1: Tầng 1 dành riêng cho việc phân bố nội thất, hiệu năng phòng khách và phòng ăn. Tầng 1 sẽ dùng để tiếp đón nhiều khách nên phòng khách được đầu tư khoảng trống rộng to.

mẫu nhà 2 tầng 1 tum mái Thái đẹp

Bản thiết kế tầng 1

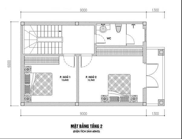
  • Mặt bằng tầng 2: 2 phòng ngủ, 1 phòng ngủ rộng mở ra ban công và một phòng ngủ nhỏ hơn và một nhà dọn dẹp chung. Nội thất bên trong mỗi phòng thiết kế dễ dàng gồm các nội thất cơ bản để tiết kiệm giá thành.

mẫu nhà 2 tầng 1 tum mái Thái đẹp

Bản thiết kế tầng 2

  • Mặt bằng tầng tum gồm có: 1 phòng thờ rộng, một phòng chứa đồ và một nhà vệ sinh.

mẫu nhà 2 tầng 1 tum mái Thái đẹp

Bản thiết kế tầng tum

Trên đây là những mẫu nhà 2 tầng 1 tum mái Thái đẹp đương đại nhất, thu hút mọi ánh nhìn. Nếu bạn đang có ý định xây dựng ngôi nhà cho mình, hãy tham khảo các mẫu thiết kế nhà siêu sang chảnh này mà Top10Vn đã gợi ý ở trên nhé!

Bạn có thể xem thêm bài viết: Chi phí đầu tư xây dựng nhà mái Thái 1 tầng 500 triệu phần thô.

0378.59.00.99