Mẫu nhà ống 2 tầng mái Thái mặt tiền 5m có lẽ quá thân thuộc với mọi người. Tuy nhiên bữa nay, Top10Vn sẽ đem lại cho gia đình những mẫu thiết kế tuyệt tự với nhiều diện tích khác nhau. Chúng không những có thiết kế độc lạ mà còn rất bề thế.
1. Mẫu nhà ống 2 tầng mặt tiền 5m đẹp và trọng thể
Phối cảnh mẫu nhà ống 2 tầng 5m
Đây là mẫu thiết kế khá đơn giản, tuy nhiên nó khá đẹp với kiến trúc mái Thái. Mặt tiền tầng trệt của mẫu nhà được thiết kế đơn điệu với cửa bằng kính. Nhằm tiêu chí cho ngôi nhà nhận ánh sáng tốt hơn tạo sự thông thoáng, mát mẻ cho ngôi nhà.

Nhà ống 2 tầng mái Thái mặt tiền 5m
Tầng 1 làm điểm tối ưu cho ngôi nhà với thiết kế bắt mắt là những cột cùng mái che lợp bằng ngói ở ban công. phối hợp với nó là mái che thang phân chia một đôi chậu cảnh.

Nhà ống 2 tầng mái Thái giá rẻ
tất cả hình như tạo nên một khối hợp nhất và làm cho ngôi vườn trẻ trung hơn. Màu sắc của ngôi nhà nổi trội với tông màu sáng. Làm cho ngôi nhà chẳng những đẹp mà còn rất quý phái.
Mặt bằng thiết kế của mẫu nhà 2 tầng
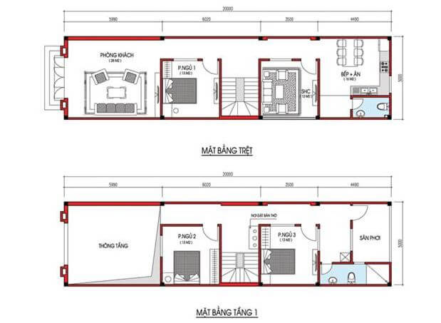
Căn nhà ở hữu mặt tiền rộng đến 5m cùng với thiết kế 2 tầng nổi trội thì ắt hẳn khoảng không của các phòng sẽ được tối ưu cho những thành viên. Và nó được thiết kế như sau:
- Tầng 1 được thiết kế với phòng khách, phòng ngủ, phòng tắm + WC, phòng ăn + bếp.
Phòng bếp được thiết kế cuối cùng với một cánh cửa. mục tiêu là giúp cho không khí được lưu thông tốt hơn và sẽ giảm được mùi thức ăn ở trong nhà.

Bản vẽ mẫu nhà ống 2 tầng mái Thái mặt tiền 5m
- Tầng 2 kể đến 2 phòng ngủ, phòng thủ sinh và phòng thờ.
Sẽ được thiết kế kèm một sân thượng ở phía trước. Là nơi giúp bạn thể hiện tình yêu với thiên nhiên bằng việc trồng cây xanh. Nó sẽ giúp thư giãn cũng như tạo được điểm khác biệt cho ngôi nhà.
2. Mẫu nhà ống 2 tầng mái Thái phù hợp với từng khoảng trống
2.1 Mẫu nhà 2 ống tầng mái Thái 5x20m trường phái khách sạn phố
Mẫu nhà này được thiết kế với kiến trúc mái Thái có gác lửng. điểm nhấn cho mẫu nhà này là kiểu mái dốc chữ A đương đại cùng với 3 mái giật cấp. phối hợp với đó là có hệ thống thoát nước, chống ẩm xung quanh mái nhà. Mặt khác, mặt tiền 5m sẽ được sơn màu trắng làm màu chủ đạo phối hợp với xám để tạo nên một ngôi nhà trang nhã.

Mẫu nhà ống 2 tầng mặt tiền 5m sang chảnh
Ban công được thiết kế với khung gỗ mái che. Nó sẽ tạo điều kiện cho gia chủ có khả năng hóng gió bất cứ thời khắc nào trong ngày.
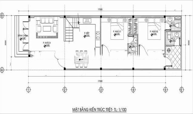
Thiết kế mẫu nhà 2 ống tầng mái Thái 5x20m: Mặt bằng tầng trệt.
Sảnh phía trước được thiết kế mang kiến trúc Châu Âu độc đáo cùng với nội thất vô cùng hiện đại. Nó chứng tỏ được vẽ trang trọng, trang trọng cho ngôi nhà. Tầng trệt được thiết kế 2 phòng ngủ phía sau nhà. nhu cầu là giúp cho không gian yên tĩnh để nghỉ ngơi và thư giãn.

Mặt bằng tầng trệt nhà 2 tầng 5x20m
2 phòng ngủ có WC khép kín để tạo sự thuận lợi và riêng tây cho các thành viên trong bạn. Cạnh đó, phòng bếp sẽ được thiết kế với nhiều khe hở để đảm bảo lưu thông khí tốt.
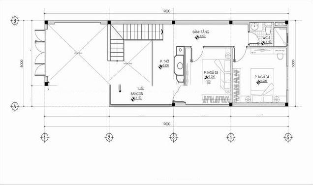
Thiết kế mẫu nhà 2 ống tầng mái Thái 5x20m: Mặt bằng tầng 1
Được thiết kế với 2 phòng ngủ với sảnh tầng rất rộng rãi cùng với phòng WC chung phía cuối nhà.

Mặt bằng tầng 1 mẫu nhà ống 5x20m 2 tầng đẹp
Phòng thờ sẽ được đặt biệt lập có ban công thoáng mát. Nơi bạn có khả năng trồng cây xanh để sức khỏe tốt hơn.
Bạn có thể xem thêm bài viết: Nhà ống không gian mở với vườn cây và tiểu cảnh thủy sinh
2.2 Nhà 2 tầng 5x15m mái Thái theo lối sống hiện đại
Phối cảnh mẫu thiết kế nhà 2 tầng mái Thái mặt tiền 5m này tuy đơn giản nhưng hết sức tinh tế. Màu trắng nhẹ nhõm làm chủ đạo sẽ giúp ngôi nhà trọng thể hơn.

Mẫu nhà 2 tầng mái Thái mặt tiền 5m đương đại
Tầng lầu được thiết kế ban công để bố trí tiểu cảnh kèm với được trang bị cửa bằng kính nhằm giúp đón nhận ánh sáng tốt hơn. Và nó sẽ giúp cho ngôi nhà thông thoáng, bớt ngột ngạt. Ban công được phân chia cây xanh sẽ trở thành một địa điểm thư giãn cho những thành viên trong bạn.
Nhà 2 tầng mái Thái mặt tiền 5m: Mặt bằng tầng trệt
Mẫu nhà ống 2 tầng mái Thái mặt tiền 5m này được thiết kế phòng khách, phòng ngủ, WC kèm phòng ăn và bếp. Phòng khách thiết kế lớn để tạo nên một khu vực rộng rãi cho gia đình. Và nó cũng là nơi để bạn có khả năng sinh hoạt, xem ti vi.
Phòng ngủ được bố trí sau rốt để tạo sự lặng tĩnh cho thành viên nghỉ ngơi, thư giãn. Nhà làm sạch được phân chia cạnh phòng bếp để tạo sự thuận tiện. các tiểu cảnh được phân bố một đôi cây xanh để tạo nên không khí trong sạch, tươi mát cho ngôi nhà.

Mặt bằng tầng trệt nhà 2 tầng 5x15m
Nhà 2 tầng mái Thái mặt tiền 5m: Mặt bằng tầng 1 nhà
Được thiết kế với 1 phòng thờ, 2 phòng ngủ, WC cùng hệ thống thông tầng. Mẫu nhà ống 2 tầng 5x15m mái Thái có phòng thờ hướng ra phía trước ban công. Tuy căn phòng nhỏ nhưng nó vẫn đảm bảo được sự uy nghiêm. Ban công được phân chia cây xanh, đảm bảo cho ngôi nhà có không khí trong lành. Và cũng là nơi để những thành viên trong bạn thư giãn mỗi ngày.

Mặt bằng lầu 1 nhà 2 tầng 5x15m đẹp
2 phòng ngủ có WC riêng để tạo không gian riêng tư cho những thành viên. Bên cạnh đó, có hệ thống thông tầng giúp cho ánh sáng vào bên trong nhà tốt hơn. Tạo sự thông thoáng, tránh ngột ngạt trong bạn.
Nói chung Top10Vn đã phân phối cho gia đình những mẫu nhà ống 2 tầng mái Thái mặt tiền 5m đẹp không nên bỏ lỡ. các mẫu nhà có thiết kế dễ dàng nhưng đẹp, tinh tế và hoành tráng. Chúng tôi hy vọng gia đình đã có một trải nghiệm tuyệt vời với những thông tin trên. Và mong rằng nó sẽ giúp bạn có một ý tưởng tuyệt diệu cho chính ngôi nhà của mình.

Bài viết cùng chuyên mục, chủ đề