Mẫu nhà vuông 2 tầng mái Nhật là kiểu nhà được xây dựng nhiều nhất hiện nay ở Việt Nam. Mẫu nhà này ưa chuộng lối kiến trúc đơn giản, nội thất tiện nghi. Bên cạnh đó, giá tiền xây dựng và hoàn tất cũng rất phải chăng sẽ là chọn lựa thực sự hoàn hảo dành cho gia đình. Cùng Top10Vn tìm hiểu về mẫu nhà này nhé!
Mẫu nhà vuông 2 tầng mái Nhật từ những hướng nhìn khác nhau
Điểm chung của mẫu nhà vuông 2 tầng mái Nhật ở Việt Nam đó chính là việc phối hợp hài hòa giữa hình khối tổng thể, màu sắc trang nhã, tinh tế và đặc biệt phù hợp với quan điểm thẩm mỹ và văn hóa của người Việt. Chúng ta có khả năng thấy được một vẻ ngoài vững chãi, hoành tráng với vùng to, thoáng đạt.
Kiểu mái nhà vuông được thiết kế rất khéo léo bằng cách đặt sole các tầng mái với hình đa giác kèm viền trắng bao vòng vèo. Đặc biệt là việc lựa chọn màu mái ngói lạ mắt giúp cho kiến trúc của ngôi nhà trở nên tiêu biểu và dị biệt so với thiếu gì mẫu nhà khác mà chúng ta vẫn thịnh hành.


Việc chọn lựa gam màu trắng làm chủ đạo hết sức hiện đại và tinh tế tạo nên độ thông thoáng và hiệu ứng phản sáng cho ngôi nhà.
Phối hợp với việc phân chia các chậu cây trước hiên nhà đem đến một diện tích tươi mát hơn, gần gũi hơn với tự nhiên. Tạo ra được bầu không khí trong sạch cho mỗi sáng thức dậy trong trào lưu thiết kế mái nhật đẹp nhất.

Khi nhìn tổng thể mẫu nhà vuông 2 tầng mái Nhật từ trên cao xuống, bạn sẽ nhận ra một điểm độc đáo riêng có. Đó chính là hệ thống mái nhà được thiết kế theo hình chữ nhật. Và đây cũng chính là lời lý giải cho tên gọi của bản thiết kế nhà.
Mẫu nhà này là kiểu kiến trúc nhà thịnh hành tại Việt Nam, nó vừa mang vẻ đẹp đặc trưng của kiến trúc truyền thống nhưng cũng không kém phần hiện đại.

Thiết kế khuôn tường nhà vuông 2 tầng mái nhật rất cao và vững chắc nhằm nhu cầu bảo vệ an toàn cho ngôi nhà của bạn.
Đó là tránh được những tác động từ bên ngoài và với hệ thống cửa nhôm kính chan hòa kiên cố, vừa tạo nên sự thống nhất, đẹp mắt mà lại an toàn cho tài sản bên trong ngôi nhà.

Thiết kế bản vẽ mặt cắt cho mẫu nhà vuông 2 tầng mái Nhật
Thông qua bản vẽ mặt cắt thiết kế của ngôi nhà, chúng ta ta có nhìn ra được việc phân chia vùng nội thất, ngoại thất một cách tối ưu. Tận dụng triệt để phần không gian xây dựng để thiết kế những khoảng không to nhất, thoáng mát nhất cho gia chủ.
Tầng 1 của ngôi nhà bao gồm: phòng khách, phòng thờ, phòng bếp + ăn, phòng làm việc, 01 phòng ngủ và khoảng không làm sạch chung.

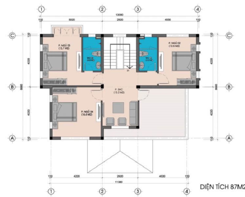
Tầng 2 sẽ được phân bố với 3 phòng ngủ riêng cho các thành viên trong gia đình, 01 phòng sinh hoạt chung và nhà vệ sinh được xây dựng hợp lý. kết hợp thêm ở tầng 2 đó là khu sân phơi và ban công.

Những phòng sẽ được kết nối với nhau một cách liền mạch và chuyển tiếp một cách linh hoạt. Vừa tạo được sự thoải mái và vừa tiện dụng hơn cho việc đi lại cũng như sinh hoạt của mọi thành viên trong gia đình.

Bên cạnh đó, mỗi diện tích và thiết kế kiến trúc cũng sẽ được nghiên cứu xây dựng theo phong thủy, hợp với mệnh của gia chủ. Đảm bảo cho bạn sở hữu được một ngôi nhà đẹp như ý, độc đáo, ấn tượng và giúp mang lại sức khỏe, tài lộc cho bạn.
Mẫu nhà vuông 2 tầng mái Nhật chưa một lần mất đi độ cuốn hút cho lựa chọn mẫu thiết kế nhà ở. Hy vọng qua bài viết này của Top10Vn sẽ giúp bạn chọn ra được mẫu nhà ưng ý.
Xem thêm các bài viết khác:

Bài viết cùng chuyên mục, chủ đề