Mẫu nhà cấp 4 đẹp 7×10 được xem là kiểu nhà có diện tích nhỏ. Với diện tích này thì nên bố trí không gian như nào để đáp ứng được cả nhu cầu sử dụng, thuận cho tiện di chuyển mà không tốn nhiều chi phí. Tất cả sẽ được giải đáp trong bài viết này.
Mặt bằng công năng bố trí khoa học dành cho mẫu nhà cấp 4 7×10
Chủ nhà nào khi thiết kế nhà của mình đều muốn có số lượng phòng ngủ từ 2 phòng trở lên giúp có không gian sinh hoạt riêng tư cho các thành viên gia đình.Vậy kiểu nhà cấp 4 7×10 có thể bố trí nhiều nhất bao nhiêu phòng ngủ?

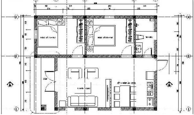
Kiểu nhà được bố trí 3 phòng ngủ hợp cho gia đình 2 thế hệ có 4 – 6 thành viên là kiểu thiết kế đầu tiên mà kiến trúc sư đề xuất cho mẫu nhà cấp 4 7×10.
Với 7m diện tích mặt tiền, các kiến trúc sư đã chia đôi nơi này để dễ cho việc bố trí không gian nhà hơn, giúp dễ hơn trong việc đi đường dây điện, internet, nước, điều hòa và cũng tạo điều kiện đi lại dễ dàng hơn trong nhà cho gia chủ
Trước tiên sẽ là hình ảnh bậc thềm tam cấp, sảnh chính có diện tích hợp lý rồi đến cửa 2 cánh. Sau cửa 2 cánh đó là khu vực phòng khách – nơi chủ nhà tiếp đón khách. Đằng sau phòng khách là khu vực bếp, bàn ăn của gia đình. Nhìn trên bản thiết kế nhà cấp 4 7×10 này ta cũng có thể dễ dàng nhìn được việc nối tiếp giữa không gian này với không gian khác giúp nhấn mạnh chiều sâu căn nhà 10m, mang đến cảm giác về không gian khá rộng rãi, giúp chủ nhà tiếp đón khách thoải mái hơn.
Không gian với 3 phòng ngủ là phần còn lại của kiểu nhà này, WC được đặt cuối nhà. 3 phòng ngủ này diện tích gần giống nhau. đáp ứng được nhu cầu sinh hoạt của các thành viên gia đình. Nhà vệ sinh được đặt ở cuối nhà giúp các không gian phía trên nhà không bị ám mùi và tiện hơn cho việc di chuyển.

Kiểu thiết kế mặt bằng của mẫu nhà cấp 4 có 2 phòng ngủ được bố trí như sau:
Giống như phương án thiết kế ở trên, khu diện tích 7m được chia thành 2 phần tương đương nhau. Một là phòng khách, bàn ăn và bếp nấu. Phần còn lại của mẫu nhà này được làm 2 phòng ngủ có diện tích khá lớn, bên cạnh đó, nhà vệ sinh được bố trí ở cuối nhà. Ở cuối nhà có cửa sau ở khu vực bếp để thông khí, không để mùi thức ăn ám lên các tầng trên
Kiểu nhà cấp 4 7×10 có 2 phòng ngủ dành cho vợ chồng mới cưới hoặc nhà có khoảng 3 đến 4 người cùng sinh sống. Trong phòng ngủ cho trẻ con có thể đặt 2 chiếc giường đơn thay vì 1 giường đôi giúp thuận tiện hơn cho gia đình có 2 con nhỏ.
2 phương án thiết kế được đưa ra trong đây để cho các gia chủ tương lai tham khảo thêm. Dựa vào những phương án đó, chủ nhà có các cách bố trí phù hợp, thỏa mãn được nhu cầu sử dụng. Dưới đây là một vài phối cảnh 3D về không gian bên trong cho kiểu nhà cấp 4 7×10:

2 tone màu trắng và nâu được lựa chọn cho không gian phòng khách, cùng ánh sáng vàng, vách ngăn gỗ màu nâu đậm mang lại một tổng thể vô cùng ấm cúng. Cửa kính và tấm rèm cửa trắng giúp lấy ánh sáng tự nhiên vào phòng khách, hạn chế nhiều nhất lượng điện năng bị tiêu thụ. Bộ sofa với điểm nhấn là chiếc gối màu vàng, đỏ đô. Điểm nhấn cho cả căn phòng là bức tranh sặc sỡ ở sau sofa, chậu cây xanh và tấm thảm lông sẫm màu

Không gian nhà bếp hiện đại nhưng không kém sự ấm áp. Chiếc tủ bếp từ chất liệu gỗ công nghiệp mang lại sự hiện đại cho căn bếp. Sự ấm áp toát lên từ bàn gỗ kết hợp với ánh sáng màu vàng tạo nên một không gian cả nhà quây quần bên mâm cơm đầy ấm áp. Không gian bếp có bàn ăn cùng với phần cửa ở sau nhà. Cửa làm từ kính giúp đón ánh sáng vào phòng, thông thoáng mùi.

Phòng ngủ dùng tone màu trắng cùng tone nâu, hòa cùng với ánh sáng đèn led vàng đem đến một không gian ấm áp. Với sự kết hợp này sẽ giúp cho chủ nhà có những giấc ngủ an yên, sâu nhất để nạp năng lượng cho một ngày làm việc đầy năng lượng.
Top mẫu nhà cấp 4 7×10 được gia chủ chú ý lựa chọn
Kiểu nhà cấp 4 7×10 được rất nhiều chủ nhà lựa chọn để xây ngôi nhà tương lai của mình, hình minh hoạ giống trên đây. Chọn lựa kiến trúc mang phong cách tân cổ điển cho ngôi nhà giúp mang lại hơi thở cổ điển xen lẫn nét phóng thoáng, hiện đại, tối đa diện tích để chủ nhà sử dụng.
Bạn có thể xem thêm bài viết: Cách Thiết Kế Nhà Nhỏ đẹp 30m2 Đến Nhà Giàu Cũng Phải Ao Ước

Thông qua cột trụ trước mặt tiền, nét cổ điển được hiện lên một cách rõ ràng, cửa chính làm từ gỗ có nét trang trí đầy cổ điển, bậc thềm được ốp đá hoa cương bền chắc và sang trọng. Hơn nữa không thể bỏ qua kiến trúc giả mái phổ biến của những ngôi nhà ở châu u. Chỗ này ở mặt tiền được tô xanh sọc trắng kết hợp cùng với ô cửa sổ tròn, vòm rất đặc trưng.
Tính hiện đại trong mẫu nhà này chính là việc lược bỏ các chi tiết họa tiết trang trí cầu kỳ từ phần cột đến cửa chính. Phần cửa chính có chất liệu kính ở hai bên và phía trên giúp lấy được ánh sáng tự nhiên vào bên trong nhà. Cửa sổ sử dụng khung nhôm kính tân tiến. Cây xanh được bố trí quanh nhà men theo tường tạo nên một không gian xanh, mang lại cảm giác gần gũi với thiên nhiên

Kiểu nhà cấp cấp 4 7×10 này vẫn sử dụng kiến trúc tân cổ điển phối hợp mái Thái mang đến không gian khá đồ sộ.
Phần móng của ngôi nhà được tôn lên cao so với những kiểu nhà giống vậy, để bảo vệ tối đa tác động của yếu tố môi trường, xung quanh móng nhà được ốp đá, từ đó tăng tuổi thọ cho công trình. Hệ thống cột trụ hình tròn cùng phần chân vuông được làm nhám sơn xám phối hợp với phần mái vòm được làm nhám sơn xám khá nổi bật. Phần mái nhà đằng sau kết hợp với trang trí theo phong cách cổ điển nổi bật. Phía cửa chính có sự rõ nét về tính cổ điển qua hình vòm nhưng phối hợp với tính hiện đại với phần cửa kính có khung bằng nhôm tô vàng rất nổi bật.
Phía trước ngôi nhà được phối cảnh với hồ nước và cây cảnh nhỏ càng tô điểm cho tổng thể kiến trúc tân cổ điển cho kiểu nhà cấp 4 7×10.

Đừng bỏ qua kiểu nhà cấp 4 7×10 trên đây vì đây là kiểu nhà mang đậm phong cách Châu u.
Các ngôi nhà Châu u hiện nay có điểm gây chú ý nhất là ở kiến trúc mái. Mái hình chữ A có độ dốc cao tạo cho không gian phía trong vô cùng rộng rãi. Cửa sổ kính được để trên mái giúp lấy ánh sáng vào bên trong nhà. Với kiểu thiết kế này, chủ nhà có ban công nhỏ trên mái. Có thể đặt một bộ bàn ghế nho nhỏ cùng một vài cây cảnh nhỏ tại đây giúp tạo không gian thông thoáng.

Nếu chủ nhà yêu thích sự tối giản thì mẫu nhà này chắc chắn là đáp án mà gia chủ đang tìm kiếm.
Để tối đa diện tích được sử dụng bên trong nhà, bạn hãy lựa chọn kiến trúc theo phong cách hiện đại với những khối hộp vuông vức. Hệ thống cửa kính kết hợp sơn trắng cũng là một trong những đặc điểm nổi bật của phong cách kiến trúc này. Phần mái bằng khiến nhà trông nhỏ gọn hơn, hợp với diện tích nhỏ của kiểu nhà này.

Kiến trúc theo phong cách hiện đại lại xuất hiện trong top những mẫu nhà cấp 4 7×10 này nhưng lần lần này là sự kết hợp với phần mái chữ A. Phần mái chữ A đem đến tổng thể khá gọn gàng cho tổng thể ngôi nhà. Phần mái này phù hợp với tất cả các chủ nhà hiện nay, có tuổi thọ lớn do phần mái này được sử dụng bằng chất liệu tôn siêu nhẹ và có chi phí rẻ.
Tường nhà được tạo điểm nhấn bởi được tô màu trắng cùng các đường phào chỉ nổi bật. Cửa kính được viền sơn nâu nổi bật, sơn tường khác màu khá nổi bật. Xung quanh ngôi nhà được đặt vài chậu cây cảnh mang lại mọt không gian trong xanh, gần gũi với thiên nhiên cho chủ nhà.
Xung quanh khu vực cây xanh được lát đá vàng rất sang trọng, nổi bật với tuổi thọ khá cao.
Qua bài viết này, Top10Vn đã gửi tới quý khách những thông tin về mẫu nhà cấp 4 7×10 có đầy đủ công năng và được bố trí khoa học. Hy vọng bài viết này hữu ích đối với bạn, chúc bạn sẽ lựa chọn được mẫu nhà như ý.

Bài viết cùng chuyên mục, chủ đề